La fenêtre Mouton et Gueule-de-Loup : une menuiserie bois traditionnelle pour les bâtiments historiques
Les menuiseries Mouton et Gueule-de-Loup sont des menuiseries traditionnelles en bois que l’on retrouve souvent dans les monuments historiques, immeubles haussmanniens ou encore hôtels particuliers. Elles peuvent être droites ou cintrées selon l’architecture du bâtiment et sont particulièrement adaptées aux grandes hauteurs.
Conçues pour répondre aux exigences esthétiques des bâtiments classés, nos menuiseries Mouton et Gueule de Loup perpétuent un savoir-faire artisanal.
Dans le cadre de rénovations, nos menuisiers peuvent reproduire quasiment à l’identique la forme et l’esthétique des fenêtres anciennes, permettant ainsi de respecter l’architecture et l’authenticité des façades.
Les performances d’isolation thermique et acoustique des menuiseries Mouton et Gueule-de-Loup
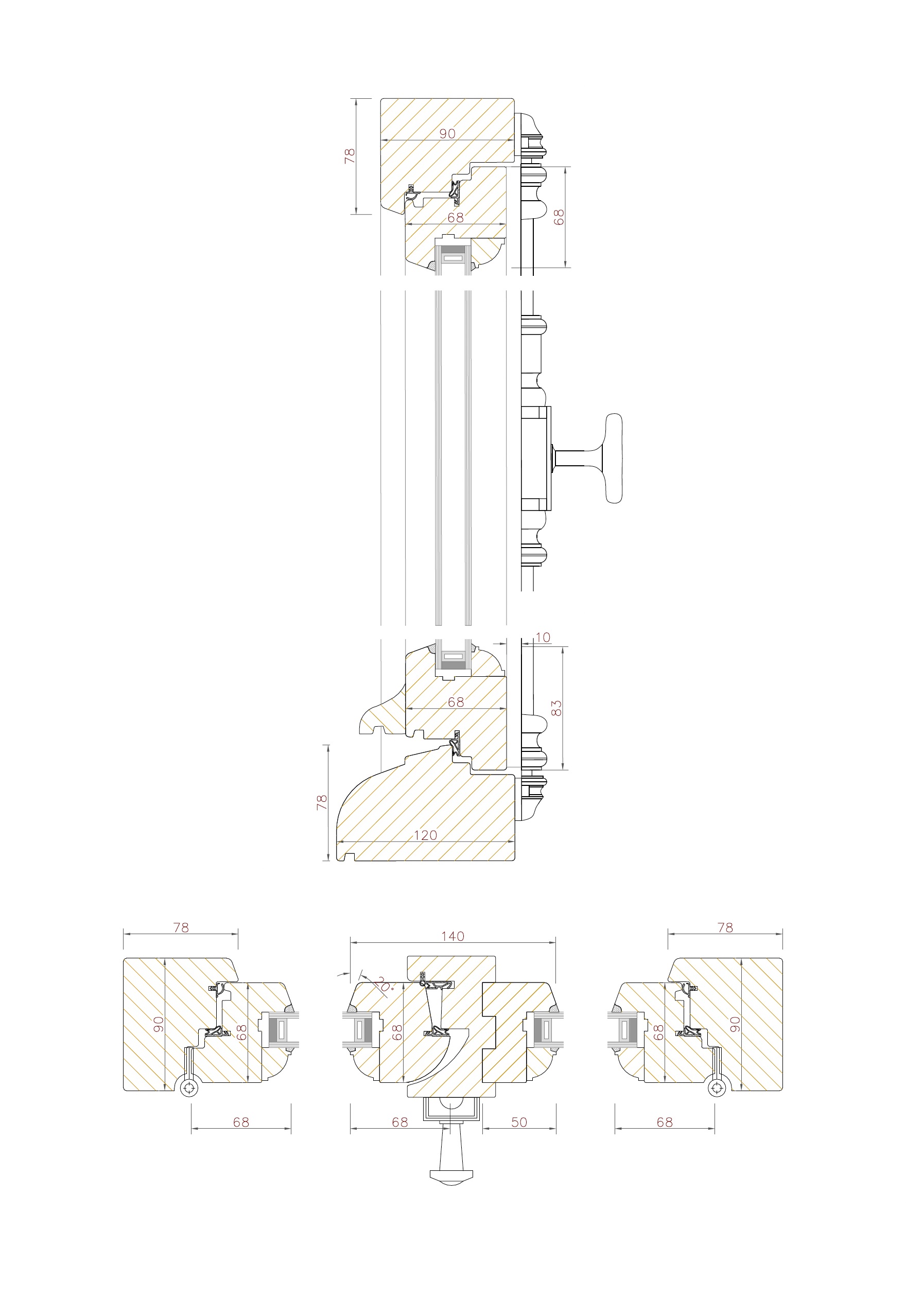
Nos menuiseries à gueule de loup offrent de très bonnes performances d’isolation thermique et phonique et une parfaite étanchéité. Elles sont notamment dotées d’un double joint d’isolation dans l’alignement de la noix et de la Gueule-de-Loup qui permet d’optimiser le coefficient de transmission thermique et l’affaiblissement acoustique.
Des finitions soignées pour une menuiserie bois élégante et authentique
Pour ces menuiseries traditionnelles, les profils d’ouvrants peuvent avoir, en option, une pente à 40° en extérieur au lieu des 20° habituels, qui n’est pas sans rappeler la finition à l’ancienne avec solin de mastic.
En intérieur, la différence d’épaisseur entre le dormant et l’ouvrant induit un affleurement quasi parfait, respectant ainsi l’esthétique traditionnelle du profil.
Les petits-bois viennent habiller la surface vitrée, la divisant visuellement en plusieurs carreaux.
Enfin, nos fenêtres Mouton et Gueule de Loup sont agrémentées de paumelles à bouts ronds ou turlupets ainsi que de crémones en fonte. Ces crémones, posées en applique, permettent la fermeture traditionnelle de la menuiserie en 2 points, haut et bas.
Mouton et Gueule de Loup dans les projets


